HENNESEY CRESCENT, NEWBURY
£515,000 Guide Price
Property Features
- ** Great Family Home **
- ** Immaculately Presented Throughout **
- ** Popular Racecourse Location **
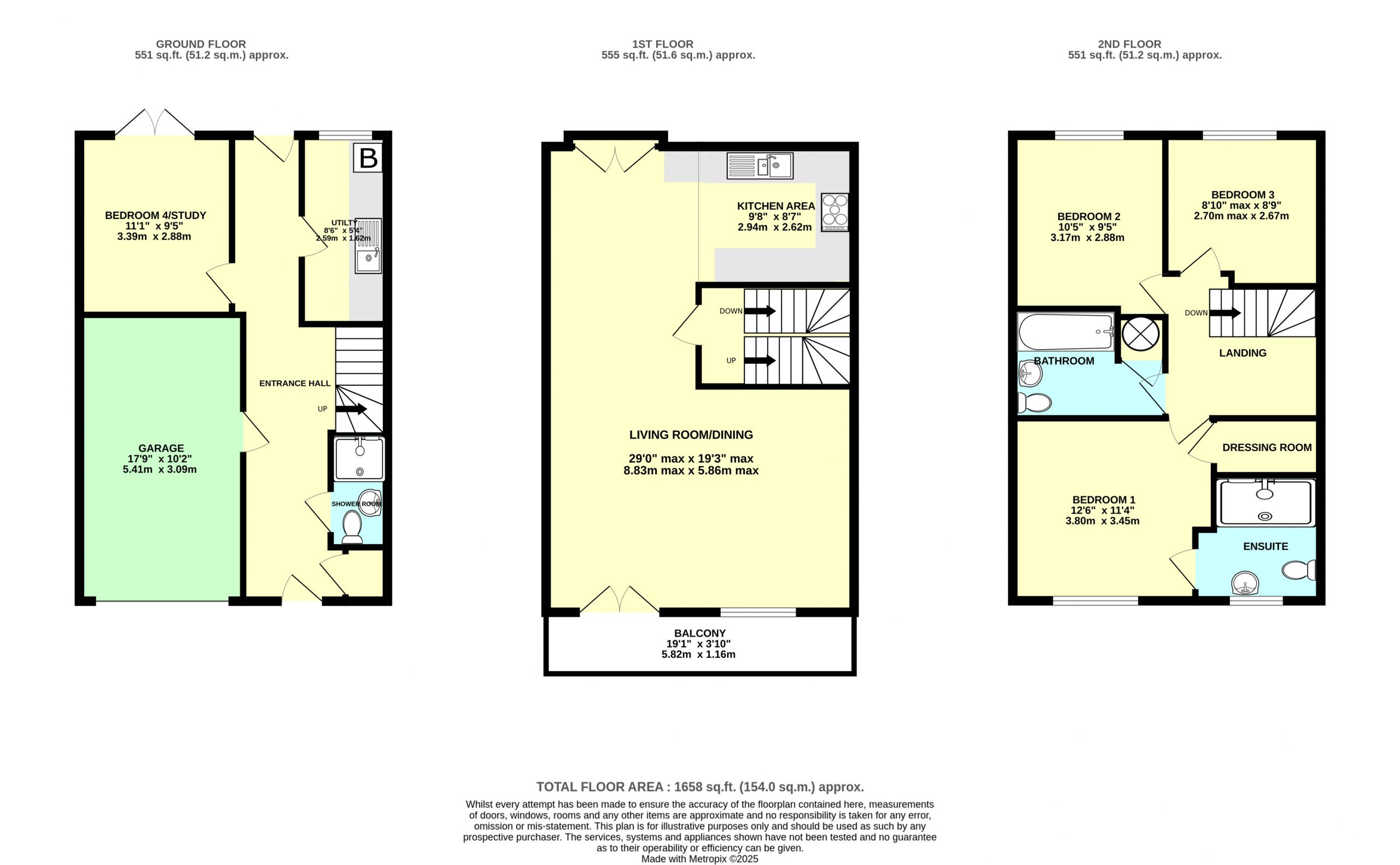
- Reception Hall
- Cloakroom
- Utility Room
- Four Bedrooms
- Great Open Plan Living
- Garage
- Gardens
- Council Tax Band E
Property Summary
Full Details
Front
Panelled front door to
Entrance Hall
Vineer flooring. Radiator. Power points. Recessed storage cupboard. Access to
Downstairs Cloakroom/Shower Room
Comprising low level WC. Pedestal wash hand basin with mixer tap. Fully tiled shower cubicle with thermostatically controlled shower unit in situ. Tiled flooring. Ladder effect heated towel rail. Recessed downlighters. Extractor fan. Door to
Integral Garage
Light and power. Up and over door to front.
Access to large storage cupboard under stairs.
Utility Room 5’2” x 6’7”
Single drainer stainless steel sink unit with mixer tap set in worktop with fitted cupboards under. Appliance space with plumbing for washing machine. Vent for tumble dryer. Wall mounted gas boiler for central heating and domestic hot water. Sealed double glazed windows to rear. Recessed downlighters. Radiator.
Bedroom Four/Office 9’5” x 11’1”
Casement doors to garden. Laminate flooring. Radiator. Power points.
From entrance hall staircase leading to
First Floor Open Plan Living Area 16’7” x 30’1”
Sealed double glazed windows to front. Casement doors to balcony enclosed by wrought ironwork. Laminate flooring. Power points. Two radiators.
Kitchen Area 12’1” x 8’7”
Kitchen area has laminate faced units with complementary worktops above comprising 1 ½ bowl single drainer stainless steel sink unit with mixer tap set in worktop with fitted cupboards under. Integrated dishwasher. Double oven. Integrated fridge/freezer. Six ring gas hob set in worktop with multi-purpose extractor hood above. Further range of base and eye level wall units. Sealed double glazed windows to rear. Double doors to Juliet balcony.
Staircase from first floor landing gives access to
Second Floor Bedroom Three 8’3” x 8’7”
Sealed double glazed windows to rear. Radiator. Power points.
Bedroom Two 9’8” x 10’2”
Double built in wardrobes with hanging rails. Sealed double glazed windows to rear. Radiator. Power points.
Family Bathroom 9’0” x 7’3”
Three piece suite comprising panelled bath with mixer tap and hand shower attachment. Pedestal wash hand basin with mixer tap. Low level WC. Recessed downlighters. Shaver point. Airing cupboard with pressurized water cylinder.
Bedroom 11’9” x 12’0”
Sealed double glazed windows to front. Radiator. Power points. Walk in wardrobe with hanging rails and fitted shelving and overhead lighting.
En-Suite Shower Room
Fully tiled shower cubicle with thermostatically controlled shower unit. Low level WC. Pedestal wash hand basin. Frosted double glazed windows to front. Ceramic tiled flooring. Recessed downlighters. Ladder effect heated towel rail.
OUTSIDE
To the rear of the property is a fully enclosed garden with astroturf and paving fully enclosed by panelled fencing with a high degree of privacy.
To the front of the property is an open plan area with access to garage and further parking space.


































