SUNHILL, ORCHARD CLOSE, HERMITAGE
£425,000 Guide Price
Property Features
- ** Vacant Possession **
- ** Popular Village Location **
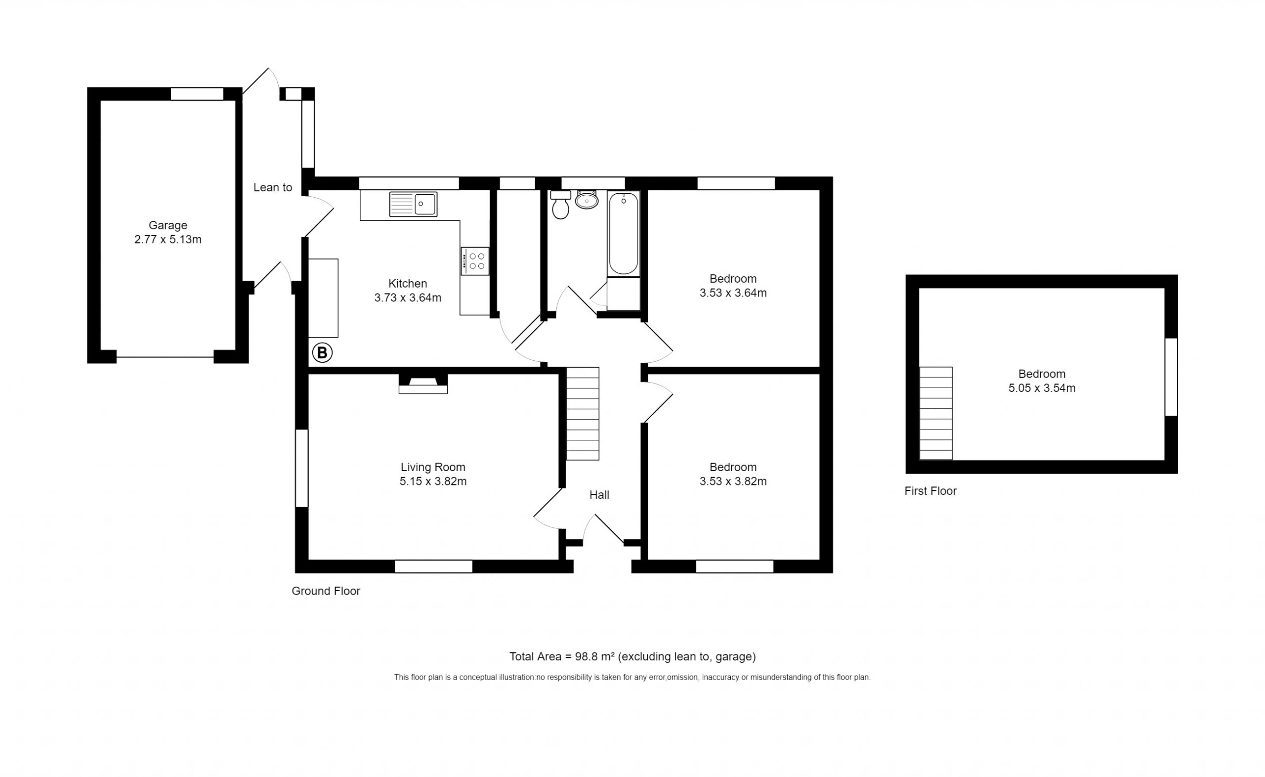
- Reception Hall
- Living Room
- Kitchen
- Loft room
- Two Double Bedrooms
- Bathroom
- Sealed Double Glazing
- Oil Fired Central Heating
- Garage & Driveway Parking
- Council Tax Band D
Property Summary
Full Details
Front
UPVC glazed front door to
Entrance Hall
Radiator
Living Room 16’10” x 12’0”
Dual aspect room with sealed double glazed windows to front and side. Open fireplace with tiled surround and mantle. Radiator. Laminate flooring. Serving hatch to kitchen.
Kitchen 12’0” x 14’8”
Wood faced units with worktops above comprising 1 ½ bowl single drainer sink unit with mixer tap set in worktop with range of fitted cupboards and drawer units under. Appliance space with plumbing for dishwasher. Boiler for central heating and domestic hot water. Further range of base and eye level wall units. Dual aspect room with sealed double glazed windows to side and rear. Electric cooker point. Radiator. Door to
Utility Room 2’7” x 8’0”
Appliance space with plumbing for washing machine. Frosted double glazed window to rear.
Bedroom One 12’0” x 11’10”
Sealed double glazed windows to rear. Radiator.
Bedroom Two 11’10” x 12’0”
Sealed double glazed windows to front. Radiator.
Bathroom 8’0” x 6’10”
Three piece suite comprising panelled bath with mixer tap and hand shower attachment. Pedestal wash hand basin. Low level WC. Heated towel rail. Linen cupboard with radiator inset with range of slatted shelving.
From the entrance hall there is a staircase leading to
Loft Room 17’8” x 11’7”
Sealed double glazed windows to side. Radiator. Access to eves storage area.
OUTSIDE
To the front of the property is a open plan garden laid mostly to grass with maturing shrubs and evergreens. To one side is a driveway providing off road parking for several vehicles and also giving access to
Detached Brick Built Garage
Tiled pitched roof. Light and power.
Side pathway and gate leading to rear garden. The rear garden is sizeable fully enclosed and laid to grass with several seating areas and raised decking.
Disclaimer
Henwick Properties has no responsibility for the information provided herein. All details are provided with the express wishes of the vendor and are deemed to be correct. The agent has not tested any apparatus, equipment, fittings or services so cannot verify that they are in working order. If required the buyer is advised to obtain further verification.




























